服務熱線
0373-3526678
生產線布置圖
上料平臺—開卷機—伺服送料—沖孔沖壓—輥壓成型—切斷—翻轉送料

概述
設備概述:
1.雙懸臂齒輪傳動裝置,機器的制造寬度可調整持續,可改變型材的寬度和高度。
2.牌坊20道成型,主機由交流電機,減速機,牌坊,變速箱,水平調節系統和軋制模具。機座和傳輸采用焊接結構,具有硬度的處理,軋輥材質為45#鋼。
3.輥壓成型工藝是由德國COPRA軟件制作;進行有限元工藝分析和檢查。提高線速度,降低成形阻力。從而保證設備的準確度和穩定性。

橋架成型、碼垛、打包全自動冷彎生產線


| 參數表 | 項目 | 單位 | 參數 | 備注 | |
1  | 原材料規格  | 類型 | 鍍鋅帶鋼 | ||
| 強度 | MPa | ≤350 | |||
| 厚度 | mm | 1.6-3.2 | |||
| 卷料內直徑 | mm | 500,600 | |||
| 重量 | T | 5 | |||
| 2 | 板型寬度 | mm | 100-320 | ||
| 3 | 生產線速度 | m/min | 25 | ||
| 4 | 軋輥材質 | D2淬火處理 | |||
| 5 | 軋輥驅動 | External chain transmission外部傳動 | |||
| 6 | 操作系統 | Windows2000 | |||
| 7 | 總電機功率 | Kw | 大約65KW | ||
| 8 | 電氣控制系統 | PLC自動控制系統 | |||
| 9 | 維度(L*W*H) | m | 30X2X1.7 | ||


電纜橋架冷彎成型生產線成型部分

橋架冷彎生產線剪切部分


電纜橋架冷彎成型生產線傳動部分
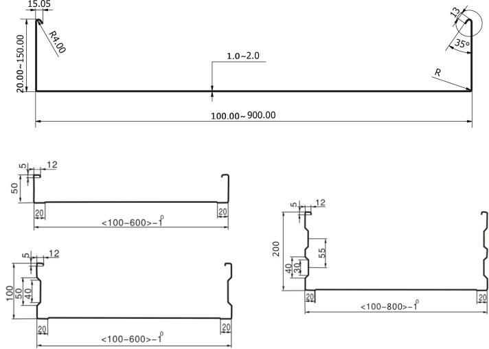
電纜橋架板型圖
橋架設備成品型鋼








				
24小時服務熱線:15225939987

電話:0373-3526678
傳真:0373-3526676
手機:15225939987
Skype:tianfengjixie1
郵箱:market@tfmm.com
地址:河南省新鄉市開發區新一街17號
